Akersgata 16 | Opplev kontorlokaler i klassisk hjørnegård i Kvadraturen
Eiendommen
Velkommen til Akersgata 16, et kontorbygg med sjel og historie midt i hjertet av Oslo sentrum. Bygården, opprinnelig oppført rundt 1895, er totalrehabilitert i 2018 og fremstår nå som et moderne, funksjonelt og inspirerende arbeidssted – samtidig som den historiske fasaden og særpreget er ivaretatt.
Lokalene
Lokalene holder høy standard med fleksible løsninger tilpasset både små og mellomstore virksomheter. Bygget byr på lyse arbeidsplasser, effektive planløsninger og en gjennomført, profesjonell atmosfære. Fra vinduene åpner det seg en eksklusiv utsikt over Wessels plass og Stortinget.
Ledige arealer:
- 2. Etasje: 694 kvm
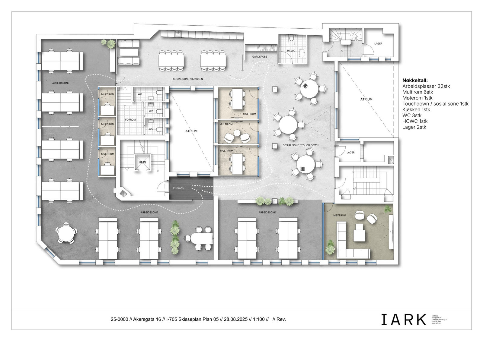
- 5. Etasje: 642 kvm
Beliggenhet
Eiendommen har en unik plassering i Kvadraturen, et levende og attraktivt område omgitt av restauranter, kaffebarer, handel og kulturtilbud. Her får du kort vei til Karl Johans gate, Stortinget, Steen & Strøm, Aker Brygge og Bjørvika – og dermed alt du trenger både i og utenfor arbeidshverdagen.
Beregn reisetid
Prøv reisetidskalkulatoren for å se hvor lang tid det tar å reise hit fra ditt utgangspunkt, med ulike transportmidler
Beskrivelse
Velkommen til Akersgata 16, et kontorbygg med sjel og historie midt i hjertet av Oslo sentrum. Bygården, opprinnelig oppført rundt 1895, er totalrehabilitert i 2018 og fremstår nå som et moderne, funksjonelt og inspirerende arbeidssted – samtidig som den historiske fasaden og særpreget er ivaretatt.Ledige Lokaler
Lokalene holder høy standard med fleksible løsninger tilpasset både små og mellomstore virksomheter. Bygget byr på lyse arbeidsplasser, effektive planløsninger og en gjennomført, profesjonell atmosfære. Fra vinduene åpner det seg en eksklusiv utsikt over Wessels plass og Stortinget.
2. Etasje: 694 kvm
5. Etasje: 642 kvm
Fasiliteter
Det er etablert ny heis i 2025. Fellesarealene, inkludert trappeoppgang og ganger, skal pusses opp i samme stilfulle uttrykk som kontorlokalene. I underetasjen etableres det nye garderobe- og dusjfasiliteter samt et treningsrom, som gir bygget en komplett og moderne standard.
Tilgjengelige fasiliteter:
- Garderobe- og dusjfasiliteter
- Treningsrom
- Sykkelparkering
- Kaffebar
Området
Eiendommen har en unik plassering i Kvadraturen, et levende og attraktivt område omgitt av restauranter, kaffebarer, handel og kulturtilbud. Her får du kort vei til Karl Johans gate, Stortinget, Steen & Strøm, Aker Brygge og Bjørvika – og dermed alt du trenger både i og utenfor arbeidshverdagen.
Enkel adkomst
Med offentlig kommunikasjon rett utenfor døren er det enkelt å komme seg til og fra:
- Buss: Wessels plass (1 min gange)
- Trikk: Øvre Slottsgate (1 min gange)
- T-bane: Stortinget (2 min gange)
- Tog: Nationaltheatret stasjon (4 min gange)
- Parkering finnes i nærliggende parkeringshus
Visning
Kontakt megler for å avtale visning.
Christoffer Bakken
Rådgiver
Mons Knudtzon
Rådgiver
